案例分享┃180㎡大平层 极致简约 慵懒落日风 极度舒适
日期 :2021-12-21 00:00:00 来源 :青岛麦峰装饰

麦峰装饰旗下高端品牌
- 颂巢别墅大宅 -高端设计研发中心 · 以大宅装修为核心别墅┃洋房┃高端写字楼┃大户型住宅标准化硬装┃定制化全装┃一体化软装┃全屋智能化以数万套经典实景作品引领行业设计潮流配套“七星级服务工程”施工规范成功为数万户全国消费者提供整体集成化服务
项目资料
项目性质丨ProjectNature:毛坯房项目面积丨SquareMeters:180平米平层

客情分析

家庭成员结构:一家三口爱好:葛优躺 撸猫风格定位:空间偏自由感家具偏意式风格空间功能需求:1.入户门位置调整 2.厨房可以开放式厨房 3.餐厅可以缩小平时在客厅吃饭 4.需要衣帽间 5.收纳合理布置。客户对于新房的期待点:提升生活品质 放松实用性 空间感 收纳充足
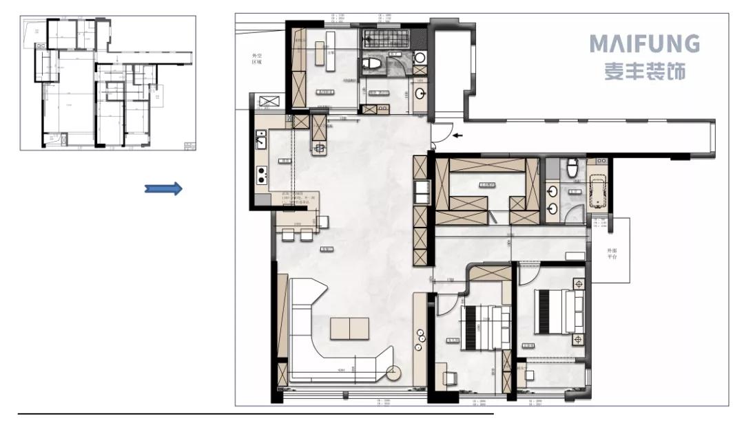
平面布局规划图

室内空间效果图
客厅


不同的材质属性,在以相同的”设计语言“巧妙融合无主灯设计、暗藏线性式光源、柔软的棉麻材质、结合了现代特点与结构美学,将人文、空间、艺术展现的淋漓尽致。


布局=中充满值得探索的小心思,相互互通,一环扣一环,满足功能需求之外,有着深度的秩序感及层次感,经过设计手法,运用纯粹的几何结构和宁静的色调,营造了一处舒适高级且充满诗意的家居氛围。
餐厅

餐厅延续客厅极简风,因房主喜欢在客厅吃饭,所以餐厅也被延做茶室,可烹茶、煮酒,待客。
厨房

开放式厨房,使用餐区更加完美,利用结构引入光线,创建视觉上的联合体,砂岩导台与漆面涂料结合的餐桌,将细腻与粗糙交错糅合,在自然光映照下呈现出剔透的光泽,精致的工艺细节展现在空间的每一个角落。
主卧

温润的主色,具有美感的线条和形体,充斥着墙壁,使空间的简约感急剧提升,少量的绿色植物点缀了白色空间,优雅而清新。
主卧卫生间

主卧卫生间,仅需满足房主的基本需求即可,超简约的白营造整体氛围感,简单到极致,干净到极致。
卫生间

卫生间以浅杏色为主基调,无边框镜面与浅灰色洗手台在形体上相互呼应,在简约的风格上营造了独特的几何美。
次卧


次卧的色调在整个房子的设计中算丰富的一处了,整体基调为白色,点缀了莫兰迪色系提升色彩的层次感,复古绿的衣柜无疑是整个房间的亮点,生活气息浓厚且尽显品味与格调。
走廊

墙面、地面、顶面以米灰色涂料为基底,视觉统一触觉温润。曲面赋予空间自由的形态,置身场景内部,以视觉来推动整体空间灵动性。
书房

在书房的设计中,房主的要求是:安静、舒适、景观好,可以偶尔远眺放松一下眼睛和心情,同时要有一定的收纳空间,不喜欢书全部漏在外面。我们将书房的窗改为全景落地窗,书柜定制为到顶全封闭式,增加储物空间和空间整洁性,一张简单的书桌、一把舒适的椅子、一杯温热的咖啡,在这里学习工作,惬意!
设计师 Senior Designer
方书亚

頌巢別墅高端大宅製造所設計總監专注别墅设计15年国际建筑室内装饰 - 高级室内设计师圣诺佳成国际艺术设计研学FANGSHUYA DESIGN
设计理念:居住空间是人文情感的寄托之所,是不断生内化生长的烙印。用设计回归空间,触摸各个维度,追寻居所栖息的真谛。生动近人,在辩证回环之中,实现人与空间的契合相生。
免费
免费申请户型规划
专属设计师免费1对1全程服务
已经有2176人申请
24小时免费咨询电话
400-168-9677
2176
* 为了您的权益,您的隐私将被严格保密,请放心填写
你家预算
108080元
免费电话报价
400-168-9677
×