融创海洋智区115平方三室现代轻奢风格装修案例
更新时间:2022-05-26 16:49:20
客户比较年轻,比较喜欢穿搭很时尚,整体做了一个简洁明了的风格,从电视背景墙、沙发背景墙、床头背景做都做了硬包提升整体的档次。主卧室卫生间改衣帽间增加衣柜空间。

青岛融创海洋智区115m²三室装修样板间——客餐厅

融创海洋智区三室现代轻奢风格装修实景图——客厅全景

融创海洋智区三室现代轻奢风格装修方案——厨房

融创海洋智区三室115m²装修实景图——南次卧

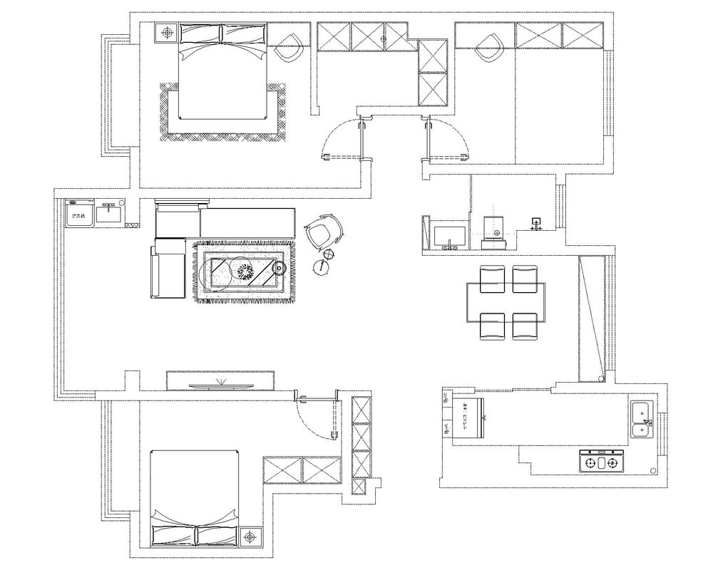
融创海洋智区115m²三室装修实景图——平面图

青岛融创海洋智区小区装修方案——主卧
2176
* 为了您的权益,您的隐私将被严格保密,请放心填写
你家预算
108080元
免费电话报价
400-168-9677
×