蔚蓝创新天地115平方混搭风格装修案例
更新时间:2021-12-24 12:14:34
业主是做老师的,很年轻,很有气质,刚来公司的时候也是带着问题来的,因为房子还没有交房,过来先看看公司的材料工艺,当然在讲解专业的同时,对于生活的简单的一些习惯也了解的很多,业主喜欢敞开式的厨房,而且经常做饭,自己的想法是把玄关砸掉做一个大的敞开式厨房,这观点我果断采纳,而且我还想给她定制个岛台,西厨的功能也就有了,不过综合考虑后,业主还是不太需要,南北通透就好了,这么大的厨房也足够用了,所以下面是我做的方案,总结了业主的生活和我的设计思想。

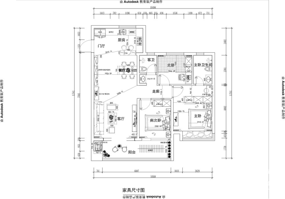
这是原始的平面图纸,是有独立玄关的,正对的那面墙直接拆掉了,这样是不是很宽敞呢,卫生间干区的位置上半墙砸掉了,后期定制玻璃的,通光好,还时尚。原始客厅的门联窗也顺手拆掉,包完窗户那就是咱们室内的大阳台了,想怎么设计都可以。

拆除完之后整个平面就做出来了,入户测定制了鞋柜酒柜一体的柜子,侧面呢可以设计成小的开放立柜,放钥匙或者雨伞都可以,也不会显着柜子侧面单调无趣,酒柜对面直接就是餐厅的背景墙了,看图上不仅有餐桌,是不是还发现了吧台呢?不管是吃早饭或者是下了班来点红酒,这里都可以实现,不过后期可能会取消掉,所以我还是暂时保留着它,因为不仅增加了视觉的层次,后期朋友来个小派对,这里的位置在核实不过了,整体客厅通过去南北通透,后期孩子可以撒欢的玩耍,电视墙也是和餐厅背景做的呼应,业主一家不喜欢太复杂的造型,大板上墙,护墙板都怕后期不喜欢处理很麻烦,所以我选择了造价低出效果的方案,乳胶漆加美纹纸,想怎么刷就怎么刷,阳台保留了生活休闲的功能,嵌入式洗衣机,让阳台更加整洁,卫生间后期不会出现关于洗衣服所有的东西,晾晒区,休闲全部实现,里侧后期安排个置物架,养养花养养草都很方便。北次卧正常布局,作为儿童房,业主不喜欢主题,那就孩子从小到大都通用的风格吧,北次卧原始的干湿分离保持不变,就不做淋浴隔断了,难打理还阻挡通风,主卧大飘窗,是女主人后期休闲备课的好地方,一杯咖啡,一本书,一上午估计是不会动地方了,步入式衣帽间让男女主人的常用,换季都有储藏空间。

这是第一稿效果图,实现了硬装的功能需求后,这里才是我大展身手的地方,这一稿没有和业主沟通太多,因为这一稿是我对业主外表和谈吐之间产生的作品,干净,多彩,多变,气质是主要思路,入户的厨房L橱柜,中西结合非常实用,后期就差业主选购自己喜欢的电器了,做成电器柜后才是真正的中西结合,餐厅我选用了灰色的乳胶漆,用美纹纸简单勾勒出了一个造型,当然上面的吊灯一定要迎合位置的氛围感。

餐厅对面就是入户鞋柜和酒柜的样式,是不是感觉不是一套房子,所以我定义为元素混搭风格,轻奢的酒柜,让我们辛勤的园丁展现出,年轻时尚的另一面,毕竟我们的生活不止有工作,休息时我们还是要享受生活,比如换上烟熏妆,与男票来杯红酒,在加上我们室内的氛围灯光,轻音乐响起来的时候那就是与世隔绝啊,说到这业主都笑的不行了,哈哈。细心的业主会发现上面还有吊顶,这都是为了柜子和后期的局部氛围做的设计,让柜子紧紧的与顶面相连,整体还和谐。

沙发别景墙也是美纹纸勾勒的,颜色的不同,局部的造型让整个空间都形成了呼应,北欧白色和淡淡绿色的配比,整个室内虽然是混搭,缺显着不那么扎眼,反而和谐有序,在我的方案里,您会发现很多在小来小去的地方会有轻奢的元素,因为我个人是非常喜欢的,也只我个人做品的一个特色吧。

站在厨房,这就是客厅的整体,左边的灰色,沉稳平静,右边的色彩活跃而纯洁,几个颜色对比就体现了,阴阳,每个空间都有对比,男主人的沉稳成熟平静,女主人的干净,活泼,多样的性格特点,一边的边吊加上氛围,营造出层次感,电视背景无论是电视,还是投影都可实现,当然窗帘盒也是从边吊延伸出来,一气呵成。

主卧的背景也是比较简单,上下半墙做出颜色对比,灯光的设计一样不落,衣柜门板是假的哦,只是做了哥饰面,让整体不是那么的单调。卧室我出了两稿方案,结尾我会附加上另一种风格的案例.

南次卧,我不说的话可能会有还多人误解,没错这是后期给孩子预留的房间,没有主题,没有童稚的陈设,一起都是顺势出发,这种房间,从小到大,孩子都不会反感,细心的业主是否发现了阳台的置物架呢。

还有一些局部的造型,都显着整体流畅,以上是我定义的一种风格,下面我会放上全景每个空间的设计方案,卫生间,北次卧,当然,风格是局限的,设计是无形的,您可以定义为任何风格为一种名词,不过人的行行色色,与众不同,喜欢的方式,表达的方式也是层出不穷,而我们的职业就是思想的结合体,业主的任何想法,我们会保留,我们会给专业性的意见,让您心中所想一步步的实现,得也实用。
2176
* 为了您的权益,您的隐私将被严格保密,请放心填写
你家预算
108080元
免费电话报价
400-168-9677
×