融创和悦118平方三室现代轻奢风格装修案例
更新时间:2021-12-23 14:05:25
此案户型为三房两厅双卫户型,可满足三代同堂的居住需求,整个室内功能丰富,以人为本,承载了中国家庭的一种生活志趣和惬意居家。

青岛融创和悦118m²三室装修样板间——客厅全景

融创和悦三室现代轻奢风格装修实景图——电视背景墙

融创和悦三室118m²装修实景图——入户

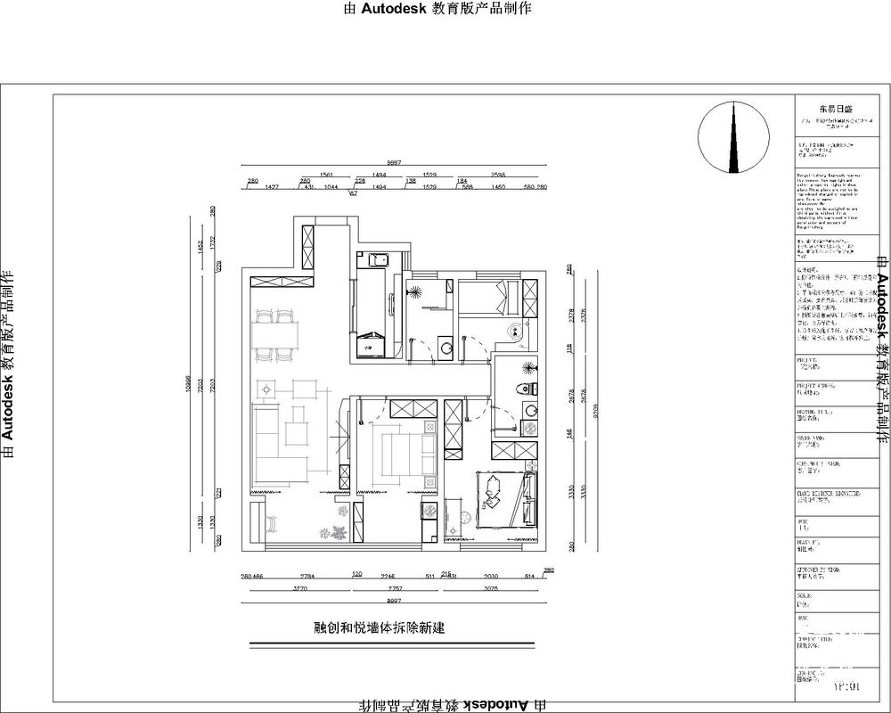
融创和悦118m²三室装修实景图——平面设计方案

青岛融创和悦小区装修方案——餐厅
2176
* 为了您的权益,您的隐私将被严格保密,请放心填写
你家预算
108080元
免费电话报价
400-168-9677
×